SOLD ALREADY
この物件は成約済み物件です
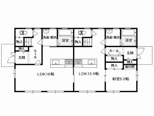
須坂東高校東側の区画整理地内の閑静な住宅地 広い土地121坪 駐車6台可能 お庭スペースもしっかり有ります!平成21年新築 玄関、キッチン、浴室、トイレ、洗面所がそれぞれに有る分離型2世帯住宅
所在地
須坂市大字日滝
土地面積公簿 401.74㎡ (121.52坪)
間取り5LDK
建物面積172㎡(52.03坪)
スタッフオススメ
| 所在地 | 須坂市大字日滝 | 建物名 | |
|---|---|---|---|
| 土地面積 | 公簿 401.74㎡ (121.52坪) | 建物面積 | 172㎡(52.03坪) |
| 間取 | 5LDK | 構造 | 2×4 |
| 詳細間取 | 2LDK+3LDK | その他一時金 | |
| 総階数 | 2階 | 完成年月 | 2009年3月 |
| 湯権 | 下水道 | 公共下水道 | |
| 通学区 | 須坂市立日滝小学校 (1400m) 須坂市立常盤中学校 (350m) |
引渡/入居日 | 相談 |
| 手数料 | 私道負担面積 | ||
| 接道状況 | |||
| 設備 | BT別室・温水洗浄便座・トイレ2箇所・暖房便座・追焚機能・バス1坪以上・オートバス・システムキッチン・カウンターキッチン・給湯・洗髪洗面化粧台・照明器具付き・都市ガス・複層ガラス・上水道・下水道・電気・エアコン・FF暖房・TVモニタ付きインターホン・火災警報器(報知機)・ウォークインクローゼット・外物置・庭・ウッドデッキ・駐車場3台分・日当り良好・バリアフリー・二世帯向き・閑静住宅街・リフォーム済み | ||
| 駐車場 | 有 6台可 | ||
| 施工会社 | |||
| 交通 |
電車: 長野電鉄長野線須坂駅 距離1900m 徒歩24分 |
||
| 管理番号 | 取引態様 | 媒介 | |
| 最終更新日 | 2025-12-22 | ||