物件詳細

BUY

トップページ > 買いたい > 中古住宅 > 物件詳細
事業用リゾート

人気のサウナ施設・民泊・宿泊施設・保養所・介護施設などにピッタリです。鉄骨造の強固な造り 温泉利用可能です。(穂高温泉供給)安曇野市内にて事業用物件をお探しのお客様、ぜひ一度ご覧になって下さい。

所在地
安曇野市穂高有明 5718-197

価格 4200 万円

土地面積公簿  2308㎡ (698.17坪)

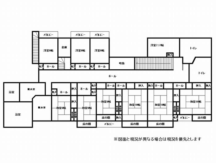
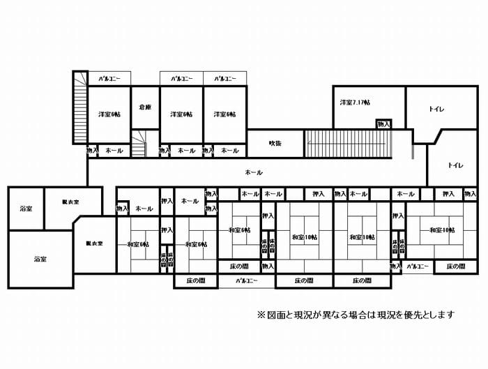
間取り10SLDK

建物面積619.38㎡(187.36坪)

スタッフオススメ

建物外観①

建物外観①

◆クリックすると画像が切り替わります。

所在地 安曇野市穂高有明 5718-197 建物名
価格 4200万円 消費税内税額
土地面積 公簿  2308㎡ (698.17坪) 建物面積 619.38㎡(187.36坪)
間取 10SLDK 構造 鉄骨造
詳細間取 その他一時金
総階数 2階  完成年月 1976年12月
湯権 下水道 集中浄化
通学区 安曇野市立穂高北小学校 (3400m)
安曇野市立穂高西中学校 (4900m)
引渡/入居日 相談
手数料 私道負担面積
接道状況 方角:北 道路幅員:6m 公私区分:公道 接面:74m 
設備 閑静住宅街・田舎リゾート向き・温泉付き・上水道・給湯・洗髪洗面化粧台・電気・駐車場3台分
駐車場 有 
施工会社
交通 電車: 大糸線細野駅 距離2500m 徒歩32分 
電車: 大糸線安曇追分駅 距離3600m 徒歩45分 
備考 穂高温泉供給 温泉利用可能 現在利用中
名義変更手数料 55,000円
温泉基本料金 年間129,800円
10年に一度更新手続き有り 330,000円(次回更新令和14年4月)

地区内外灯管理費 年間6,600円

安曇野市土地利用条例 山麓保養区域 利用用途に一部制限がございます。詳細はお問い合わせ下さい。
管理番号 取引態様 一般媒介
最終更新日 2025-11-26

マップ

※物件位置が表示されていない場合もあります。 正確な位置は取り扱い会社へお問い合わせください

物件のお問い合わせ

物件情報 物件番号:447269 / 事業用リゾート / 安曇野市穂高有明5718-197 / 価格:4200万円
お名前 必須
電話番号 必須
FAX
※FAXで資料送付をご希望の方は、必ず入力してください。
メールアドレス 必須
資料送付先 郵便番号 
住所 
※郵送で資料送付をご希望の方は、必ず入力してください。
お問い合わせ種別 資料をメールで送ってほしい
資料をFAXで送ってほしい
資料を郵送してほしい
現地を見てみたい
電話で聞きたい
ご質問内容
ご希望の条件、ご予算、その他質問事項があればご記入ください